CHET LAWTON
PRINT
CONTACT
CHET LAWTON
PRINT
CONTACT
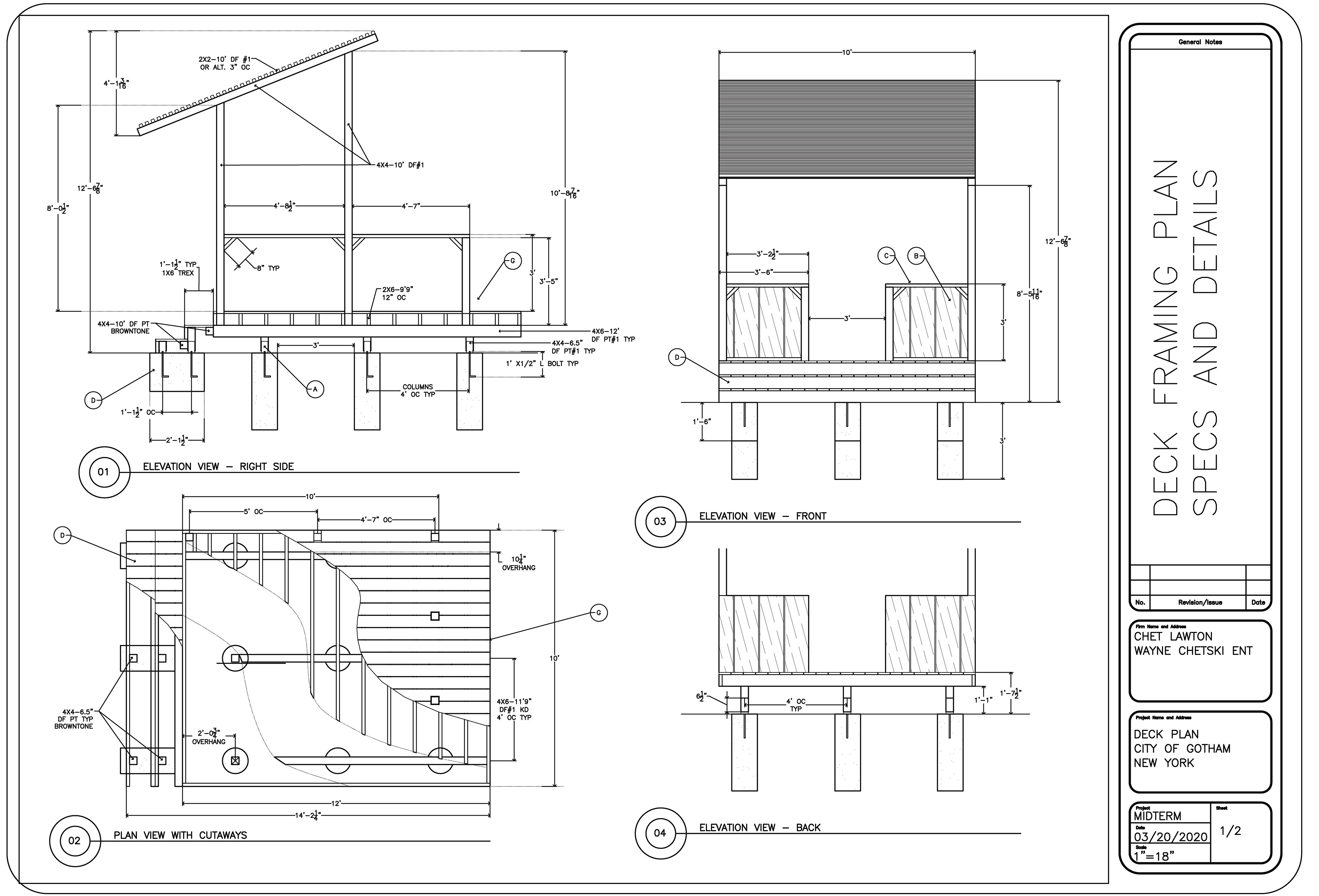
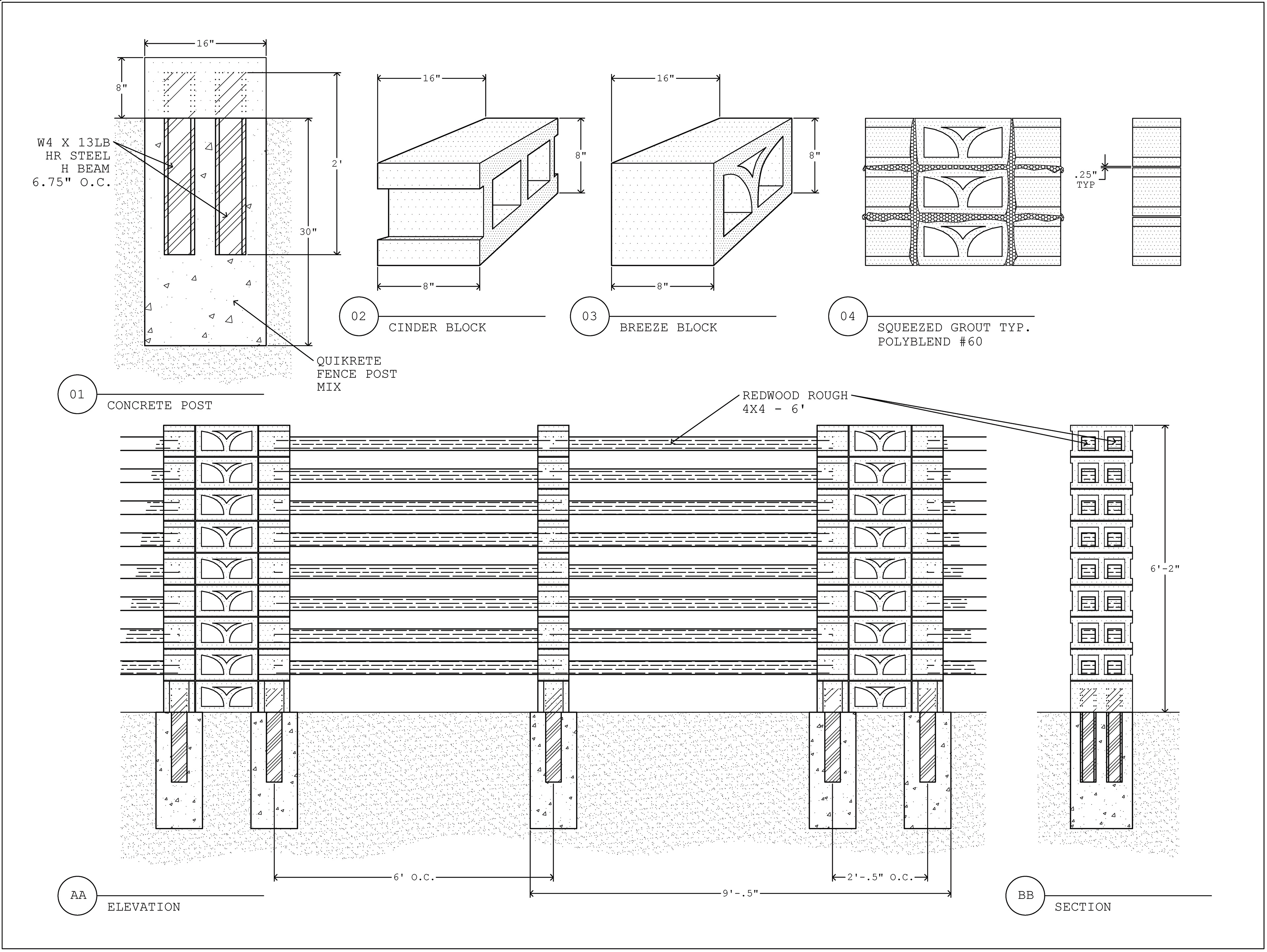
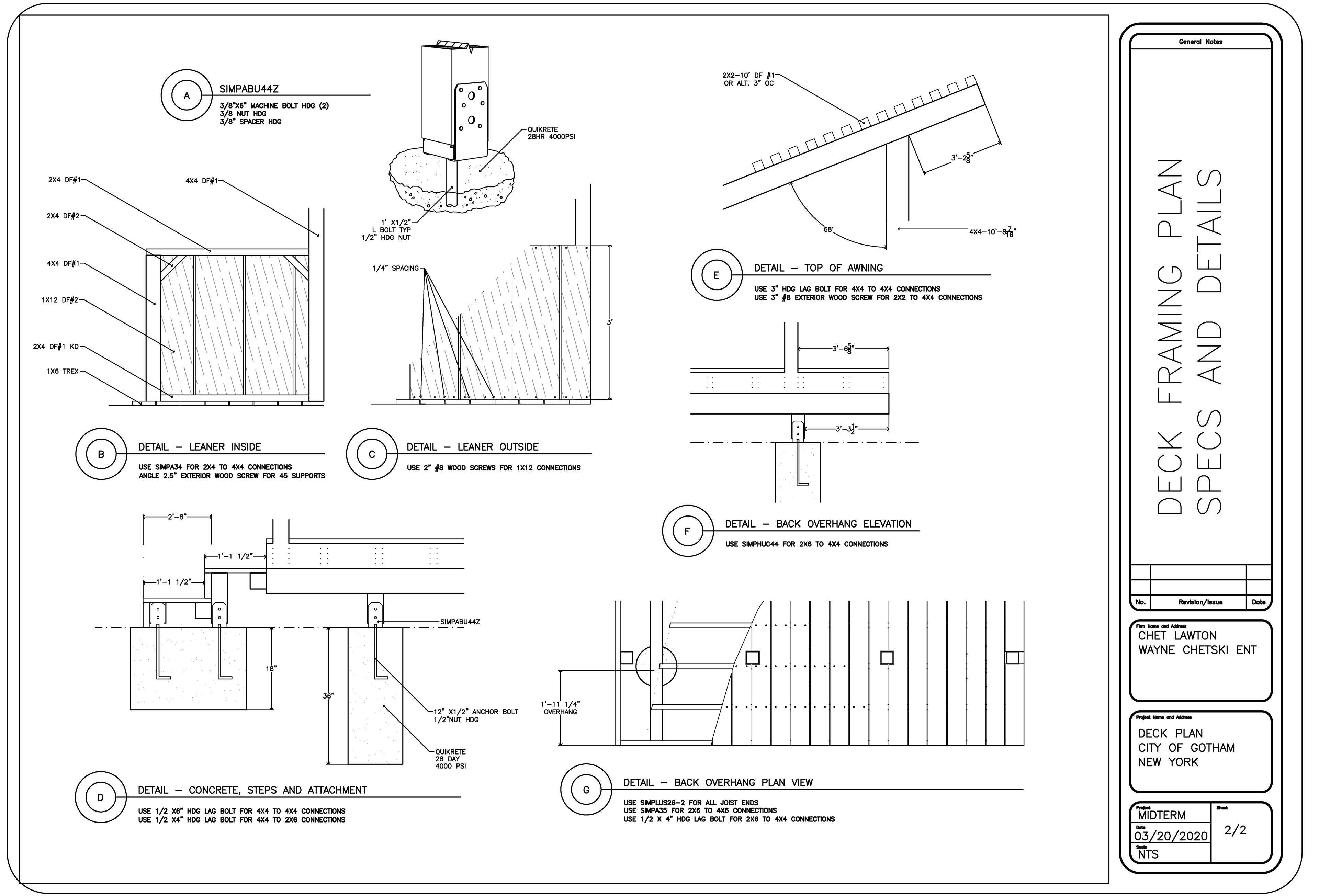
Landscape Construction
↑
Back to Top